兰州新区化工园区污水处理厂(一期)项目位于化工园区最南端,纬五十路以南,经三十五路以东,经三十六路以西区域。污水处理厂(一期)项目规模2.5万m3/d,总占地面积123亩。先行建设规模为1.25万m3/d(部分公用工程按2.5万m3/d的处理规模一次性建设到位),后期扩建规模为1.25万m3/d。一期先行建设工程项目总投资为2.98亿元。

污水处理厂(一期)项目由东华工程科技股份有限公司(原化工部第三设计院)设计,主要承担集中达标处理化工园区(东区)各企业经预处理后满足园区纳管标准的生产废水,园区企业排放废水经企业排污出口分析小屋检测合格,进入污水处理厂进行集中处理,企业出口分析小屋监测数据同步接入污水处理厂DCS控制系统。经污水处理厂集中处理后达到《城镇污水处理厂污染物排放标准》(GB18918-2002)一级 A 标准的尾水排入下游水体(进出水指标见表1)。
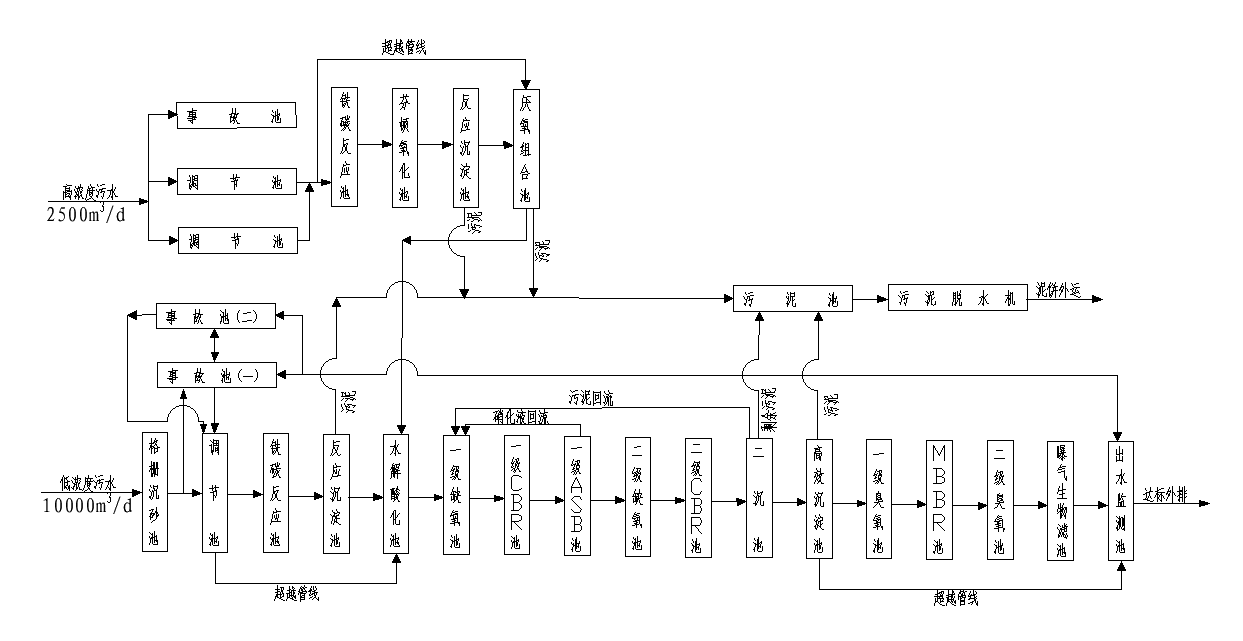
污水处理厂(一期)项目以生化法为主要处理工艺,装置结合园区的产业方向和入驻企业的实际情况,按照“分类收集、分质处理”的原则,将园区的生产废水进行高低浓区别之分,高浓生产废水采用“铁碳微电解+芬顿氧化+反应沉淀+厌氧反应”的工艺预处理后并入低浓生产废水中继续生化处理;低浓生产废水采用“铁碳微电解+反应沉淀+水解酸化+生化两级A/O+二沉+臭氧两级深度处理”工艺路线(工艺流程图见图1)。工艺系统双线并联设置并设置超越管线,系统运行灵活可靠。项目主要建设格栅沉砂池、事故池和调节池、铁碳反应池、芬顿氧化池、反应沉淀池、厌氧反应池、生化组合池、二沉池、高效沉淀池、深度处理组合池、出水监测池等主要工艺构筑物,配套建设鼓风机房、加药间、污泥脱水间、生产楼等辅助生产设施。

园区建设集中式污水处理厂旨在有效整合资源、集中专业化处理园区各企业的污水,降低园区整体污水处理费用,为园区落地企业减轻排污压力。该项目的建成,将解决企业的排污困扰,降低企业污水单独处理的综合成本,对治理水污染,保护水质和生态平衡具有重要作用。同时,也为入园企业营造了良好的投资环境,有助于推动兰州新区化工园区的总体规划建设,给兰州新区以及化工园区的发展带来良好的社会效益。